emilspec
An Integrated Publishing, Inc. Site
eMilSpec
An Integrated Publishing Website
MIL-DTL-17361-16 Circuit Breakers, Air, Electric, Insulated Housing \(Shipboard Use\) Type Aqb-Lf226 \(For Replacement Only Of A225 And Lf225\)
Pages
1
-
2
-
3
-
4
-
5
-
6
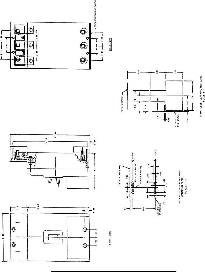
MIL-DTL-17361/16A(SH)
FIGURE 1. Circuit breaker type
AQB-LF226, outline and mounting dimensions.
5