
INCH-POUND
MIL-PRF-83383/4F
25 October 2011
SUPERSEDING
MIL-PRF-83383/4E
08 December 2004
PERFORMANCE SPECIFICATION SHEET
CIRCUIT BREAKERS, REMOTE CONTROL, AC-DC, THERMAL, TRIP-FREE,
SERIES TRIP, TRIPLE POLE, AUXILIARY CONTACTS (5 TO 100 AMPERES)
This specification is approved for use by all Departments
and Agencies of the Department of Defense.
The requirements for acquiring the product described herein
shall consist of this specification sheet and MIL-PRF-83383.
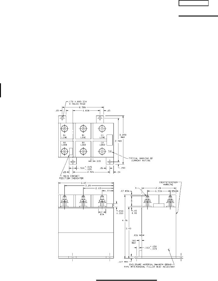
FIGURE 1. Dimensions and configuration.
AMSC N/A
FSC 5925
For Parts Inquires submit RFQ to Parts Hangar, Inc.
© Copyright 2015 Integrated Publishing, Inc.
A Service Disabled Veteran Owned Small Business