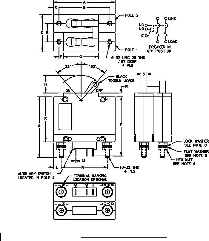
MIL-PRF-55629-4 Circuit Breakers, Magnetic, Unsealed Trip-Free, Double Pole, Auxiliary Contacts \(0.2 To 50 Amperes\)