
MIL-DTL-23928/5C
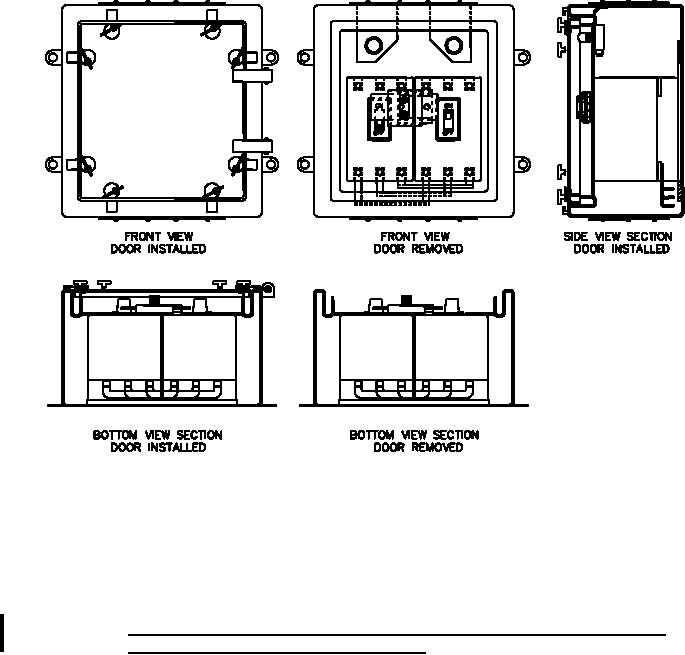
FIGURE 2. Panel interlock arrangement of double AQB-A102, AQB-A103, NQB-A101 circuit breakers
for manual transfer function, watertight enclosure.
2
For Parts Inquires submit RFQ to Parts Hangar, Inc.
© Copyright 2015 Integrated Publishing, Inc.
A Service Disabled Veteran Owned Small Business