
MIL-DTL-23928/1E
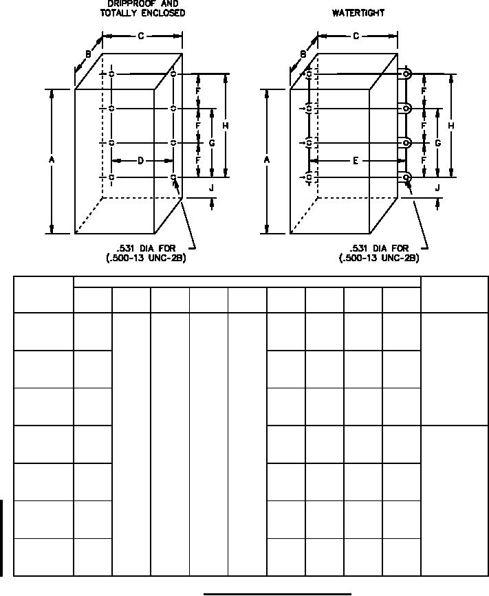
DIMENSIONS (INCHES)
NUMBER
MOUNTING
OF
HOLES
CIRCUITS
PER SIDE
A
B
C
D
E
F
G
H
J
6-1φ
or
22.50
4.63
9.25
---
6.63
4-3φ
8-1φ
or
25.50
4.63
9.25
---
8.13
3
6-3φ
12-1φ
or
28.50
6.00
12.00
---
8.25
8-3φ
14-1φ
6.50
15.44
13.44
17.44
Max
Max
Max
Max
or
31.50
6.50
13.00
19.50
6.00
10-3φ
18-1φ
or
34.50
6.50
13.00
19.50
7.50
12-3φ
4
20-1φ
or
37.50
6.50
13.00
19.50
9.00
14-3φ
24-1φ
or
40.50
11.25
22.50
33.75
3.38
16-3φ
FIGURE 3. Panel and mounting dimensions.
3