
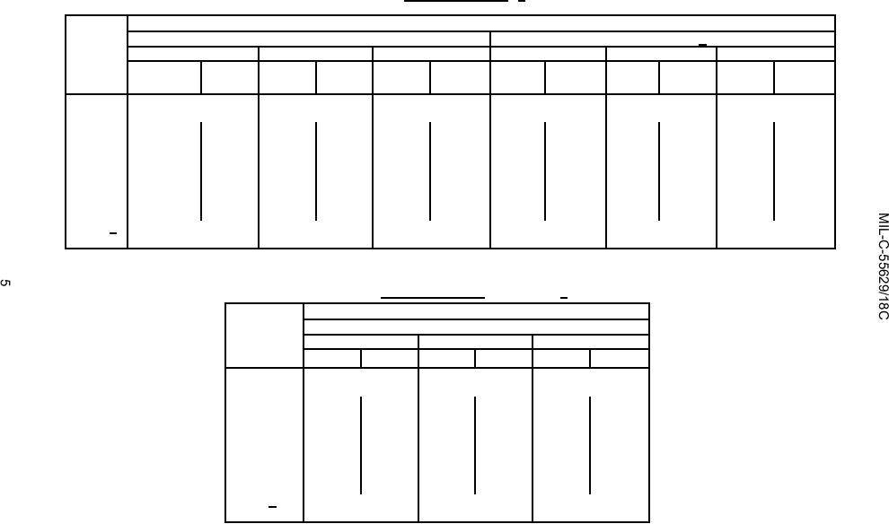
TABLE II. Tripping-time delay. 1/
Tripping-time delay at 25C 2C (tripping time in seconds)
Time
delay
125 V dc
240 V , 60 Hz 2/
percent
K
L
M
N
P
Q
rated
Max
Min
Max
Min
Max
Min
Max
Min
Max
Min
Max
Min
current
no trip
no trip
no trip
no trip
no trip
no trip
100
one hour
one hour
one hour
one hour
one hour
one hour
125
1,000
120
120
8
10
.44
880
100
90
13
7.0
.80
150
360
60
60
5.9
4.0
.25
500
48
37
6
3.0
.40
200
110
22
21
2.5
1.5
.13
200
20
10.5
2.1
1.0
.15
400
16
4
4.0
0.5
.35
.03
30
4
1.84
.46
.25
.032
600
7
0.7
1.7
.19
.2
Inst
9
.9
.9
.03
.15
.019
800
4
inst
.65
Inst
.16
Inst
5
.025
.6
Inst
.11
Inst
1,000
2.75
inst
.35
Inst
.12
Inst
2.75
.020
.51
Inst
.095
Inst
1,800 3/
no trip
no trip
N/A
no trip
no trip
N/A
TABLE II. Tripping-time delay - Continued. 1/
Tripping-time delay at 25C 2C (tripping time in seconds)
Time delay
percent
240 V , 400 Hz
rated
R
S
T
current
Max
Min
Max
Min
Max
Min
no trip
no trip
no trip
100
one hour
one hour
one hour
125
---
---
---
---
---
---
150
450
80
40.0
9.5
4.0
.6
200
195
35
17.0
3.8
1.5
.23
400
22
4.3
2.2
.35
.16
.03
600
7
.025
1.3
.02
.07
Inst
800
.09
Inst
.50
Inst
.06
Inst
1,000
.05
Inst
.055
Inst
.06
Inst
1,800 3/
no trip
no trip
N/A