emilspec
An Integrated Publishing, Inc. Site
eMilSpec
An Integrated Publishing Website
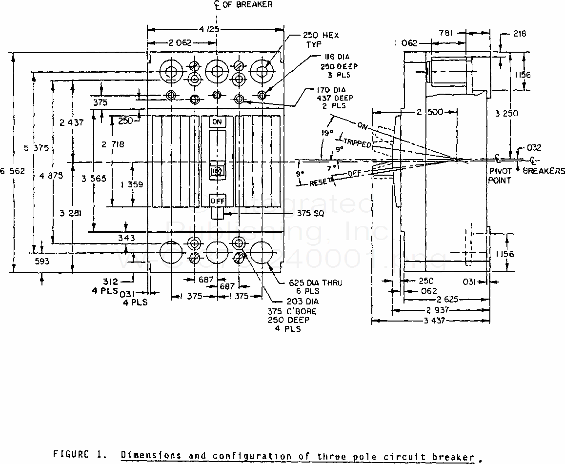
Circuit Breakers, Molded Case, Branch Circuit And Service, Type Ii, Series Trip, Three Pole (100 Through 225 Amperes)
For Parts Inquires submit RFQ to
Parts Hangar, Inc.
© Copyright 2015 Integrated Publishing, Inc.
A Service Disabled Veteran Owned Small Business