
MIL-PRF-55629E
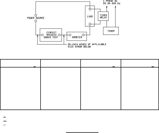
Circuit breaker
Wire size
Uninsulated terminal
Insulated terminal
capacity (amperes) 1/
(AN designation)
lug (MS part no.) 2/
lug (MS part no.) 2/
1 and below
20
SAE-AS20659 3/
2 to
6 inclusive
18
SAE-AS20659 3/
SAE-AS25036 3/
7 to
10 inclusive
16
SAE-AS20659 3/
SAE-AS25036 3/
11 to
15 inclusive
14
SAE-AS20659 3/
SAE-AS25036 3/
16 to
20 inclusive
12
SAE-AS20659 3/
SAE-AS25036 3/
21 to
25 inclusive
10
SAE-AS20659 3/
SAE-AS25036 3/
26 to
40 inclusive
8
SAE-AS20659 3/
SAE-AS25036 3/
41 to
55 inclusive
6
SAE-AS20659 3/
SAE-AS25036 3/
56 to
70 inclusive
4
SAE-AS20659 3/
SAE-AS25036 3/
71 to
80 inclusive
3
SAE-AS20659 3/
SAE-AS25036 3/
81 to 100 inclusive
2
SAE-AS20659 3/
SAE-AS25036 3/
1/ For circuit breakers between steps, use the AN wire of the next larger physical wire size.
3/ Use appropriate dash number for current rating and stud size.
FIGURE 1. Calibration-test circuit.
14
For Parts Inquires submit RFQ to Parts Hangar, Inc.
© Copyright 2015 Integrated Publishing, Inc.
A Service Disabled Veteran Owned Small Business